ガーデンコラム
COLUMN
2014.10.30
木本
2014.10.30
お庭のリフォーム①
目次
浜松市浜北区エクステリア専門店、ハマニグリーンパークです。
お庭の前の部分はすでに完了しております。
今回はおしゃれな物置『カンナ』とアプローチ、花壇の作成です。
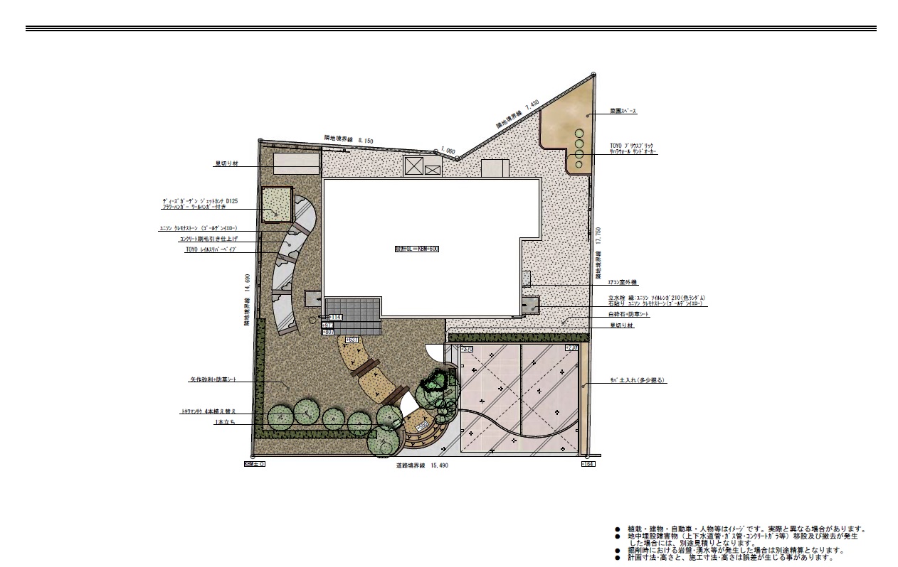
完成図面はコチラ ⇓
カーポートは、カムフィのワイド2台用です。
門扉はLIXILのアルミ鋳物門扉、コラゾンを使用しました。
門扉を抜けた後の、カンナまで続く小径の作成です!
実際の工事に入っていきますよ(^O^)/
最初はカンナの設置です。
WRITER 木本 幸代
エクステリアアドバイザー
保有資格
1級エクステリアプランナー
コンクリートブロック工事士
ブロック塀診断士
簿記2級
お庭に関する疑問点や質問に的確に答えられるよう日々勉強してまいります。常に笑顔でお客様をお待ちしております。
関連記事
RELATED POSTS

